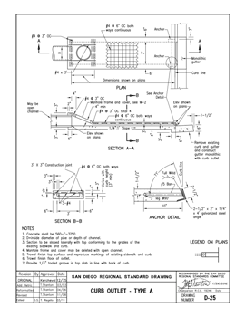
Curb Outlet

The Curb Outlet is used when you need to drain water from the gutter to behind the sidewalk, or vice versa. There will be either a pipe or a open ditch connected to the back. If a pipe is used the structure will have a 24" light traffic ring and cover behind the sidewalk. This structure is 3' wide and will run from the gutter to behind the sidewalk. A fairly standard length is 10'.