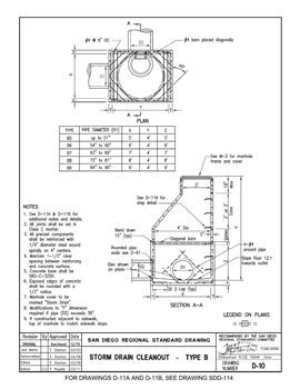
Type B Cleanout

The Type B Cleanout is used whenever you need to connect more than one pipe. This structure does not act as a surface drain, only a place to enter and clean the system. The Type B Cleanout can accomodate many pipe sizes by increasing the "X" and "Z" dimensions of the structure. The most typical is the Type B5 Cleanout which is a 4' x 5' core that is usually 5' tall, with the remainder of the height consumed by stacking. The B5 will acommodate up to 51" pipe. The Type B Cleanout is very similiar to the Type A Cleanout, except for its larger 4' opening on the top of the structure. These are usually used when the structure is required to be very deep as it gives more room to enter.